Гидравлика для бульдозеров ЧЕТРА Т–40.01К и Т–35.01К: гидрораспределитель БГМ 3501–26–62 «Белгидромаш» и другая гидроаппаратура
Среди широкой гаммы тяжёлой гусеничной техники, выпускаемой заводом «Промтрактор» концерна «Тракторные Заводы», особняком стоят бульдозеры серий Т–40 и Т–35. Бульдозер Т–40.01 ЧЕТРА – самый тяжёлый гусеничный трактор, серийно выпускаемый в России. Оснащённый 19-литровым шестицилиндровым дизелем «Cummins» с газотурбинным наддувом и мощностью 590 л.с., бульдозер Т–40.01 ЧЕТРА применяется для тяжёлых работ при добыче полезных ископаемых в сложных климатических условиях: в угольных разрезах и карьерах, на рудниках и нефтегазовых промыслах.
Напряжённые условия эксплуатации бульдозеров Т–40 и Т–35 ЧЕТРА, сопряжённые с широким диапазоном климатических зон – от ледяной тундры Ямала до знойных песков Средней Азии и Сахары – предъявляют особые требования к гидравлическому оборудованию гидросистемы бульдозера.
Раздельно–агрегатная гидравлическая система бульдозера Т–40.01 включает в себя:
- три шестерённых насоса суммарной производительностью 550 л/мин (при 2100 об/мин);
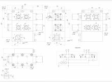
- два секционных гидрораспределителя 3501-26-62, обеспечивающих подъём и перекос отвала, изменение угла резания отвала, подъём и изменение угла наклона зуба рыхлителя;
- дистанционное гидравлическое сервоуправление золотниками секционных гидрораспределителей 3501-26-62;
- гидробак с фильтрующим оборудованием;
- исполнительные (рабочие) гидроцилиндры.
Настройка предохранительных клапанов гидросистемы бульдозера Т–40 ЧЕТРА осуществляется на максимальное давление срабатывания 20 МПа (200 кгс/см2).
Секционный гидрораспределитель 3501–26–62 имеет белорусский аналог: такие же гидроаппараты выпускает гомельское предприятие «Белгидромаш». Гидрораспределители производства «Белгидромаш» имеют схожее обозначение – БГМ 3501-26-62 – и могут применяться как в бульдозерах Т–40.01, так и в бульдозерах Т–35.01 ЧЕТРА.
В производственной программе гомельского «Белгидромаш» имеются гидрораспределители и других модификаций. В частности, секционные золотниковые гидрораспределители БГМ 3501–26–61 и БГМ 3501–26–63, которые тоже применяются в гидравлических системах бульдозеров ЧЕТРА производства «Промтрактор».
Фотогалерея статьи
Напряжённые условия эксплуатации бульдозеров Т–40 и Т–35 ЧЕТРА, сопряжённые с широким диапазоном климатических зон – от ледяной тундры Ямала до знойных песков Средней Азии и Сахары – предъявляют особые требования к гидравлическому оборудованию гидросистемы бульдозера.
Раздельно–агрегатная гидравлическая система бульдозера Т–40.01 включает в себя:
- три шестерённых насоса суммарной производительностью 550 л/мин (при 2100 об/мин);
- два секционных гидрораспределителя 3501-26-62, обеспечивающих подъём и перекос отвала, изменение угла резания отвала, подъём и изменение угла наклона зуба рыхлителя;
- дистанционное гидравлическое сервоуправление золотниками секционных гидрораспределителей 3501-26-62;
- гидробак с фильтрующим оборудованием;
- исполнительные (рабочие) гидроцилиндры.
Настройка предохранительных клапанов гидросистемы бульдозера Т–40 ЧЕТРА осуществляется на максимальное давление срабатывания 20 МПа (200 кгс/см2).
Секционный гидрораспределитель 3501–26–62 имеет белорусский аналог: такие же гидроаппараты выпускает гомельское предприятие «Белгидромаш». Гидрораспределители производства «Белгидромаш» имеют схожее обозначение – БГМ 3501-26-62 – и могут применяться как в бульдозерах Т–40.01, так и в бульдозерах Т–35.01 ЧЕТРА.
В производственной программе гомельского «Белгидромаш» имеются гидрораспределители и других модификаций. В частности, секционные золотниковые гидрораспределители БГМ 3501–26–61 и БГМ 3501–26–63, которые тоже применяются в гидравлических системах бульдозеров ЧЕТРА производства «Промтрактор».
| Разместил: | Ковалёв Ф.Г. |
| Источник: | Собственная информация |
| Учетная запись: | Белгидромаш |
| Дата: | 19.12.19 |
| Гидрораспределитель БГМ 3501-26-62 для бульдозера ЧЕТРА Т-40.01 и Т-35.01 | Габаритный чертёж гидрораспределителя БГМ 3501-26-62 |









