Машиностроительная доска объявлений
Продам:
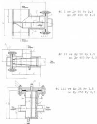
ФС-I— от d 50-до d 400 — 2,5-6,3 Т-ММ-11-2003 (2000)
ФС-II— от d 50-до d 400— 2,5-6,3 Т-ММ-11-2003 (2000)
ФС-III— (от 25 до 250) —2,5-6,3 ТММ-11-2003
ФС-IV— (от 50 до 600) —1,0 ТММ-11-2003
ФС-V— (от 50 до 600) —1,0 ТММ-11-2003
ФС-VI— (от 25 до 250) —1,0 ТММ-11-2003
Описание:
Фильтры сетчатые предназначены для защиты от попадания инородных частиц в элементы трубопроводных систем: клапаны, форсунки, расходомеры и т. д. Фильтры выпускаются с различными условными диаметрами.
Фильтр устанавливается перед защищаемым элементом, улавливает и собирает посторонние частицы, содержащиеся в потоке жидкости. Степень очистки потока определяется размером ячеек в сетке фильтра.
Поток, проходя через фильтроэлемент, замедляется, и инородные тяжелые частицы за счет сил инерции. Более легкие частицы не пропускаются сеткой фильтроэлемента. Накопившиеся частицы удаляются при снятии с корпуса крышки и фильтроэлемента.
А также изготовляем другое стандартизированное оборудование по чертежам проектных институтов и по чертежам заказчика:
•Блоки пружинные
•Воздухосборник вертикальный и горизонтальный
•Гидрозатвор по чертежу
•Грязевики горизонтальные
•Грязевики вертикальные
•Грязевики абонентские
•Грязеуловитель для всасывающих трубопроводов
•Закладная конструкция по ЗК
•Нагреватель азота
•Опоры и подвески для трубопроводов
•Отборные устройства давления по ЗК ТМ СТМ
•Охладитель проб по чертежу
•Подогреватель по Т-ММ-19-2002-07.00
•Пробки бобышки штуцера
•Камера выносная КУВ
•Камера для сигнализатора уровня
•Колонка для управления задвижками
•Колонка управления затвором и шаровыми кранами
•Пружинные блоки
•Расширитель прямой и угловой по ЗК
•Сепаратор
•Удлинитель шарнирный для задвижек, вентилей типа УШЗ по Т-ММ
•Узел отбора проб
•Узел присоединения шлангов, рукавов
•Узел присоединения дренажного трубопровода к насосам
•Фильтр временный к насосам ФСВ
•Фильтр жидкостной по ОРК
•Фланцевые соединения для камерных измерительных диафрагм ФКВ, ФКП
•Фонарь смотровой трубопроводный
Изображения объявления
Фильтр сетчатый ФС-3 ФС-III
Предприятие ООО «КамПромДеталь» изготовляет фильтры сетчатые:ФС-I— от d 50-до d 400 — 2,5-6,3 Т-ММ-11-2003 (2000)
ФС-II— от d 50-до d 400— 2,5-6,3 Т-ММ-11-2003 (2000)
ФС-III— (от 25 до 250) —2,5-6,3 ТММ-11-2003
ФС-IV— (от 50 до 600) —1,0 ТММ-11-2003
ФС-V— (от 50 до 600) —1,0 ТММ-11-2003
ФС-VI— (от 25 до 250) —1,0 ТММ-11-2003
Описание:
Фильтры сетчатые предназначены для защиты от попадания инородных частиц в элементы трубопроводных систем: клапаны, форсунки, расходомеры и т. д. Фильтры выпускаются с различными условными диаметрами.
Фильтр устанавливается перед защищаемым элементом, улавливает и собирает посторонние частицы, содержащиеся в потоке жидкости. Степень очистки потока определяется размером ячеек в сетке фильтра.
Поток, проходя через фильтроэлемент, замедляется, и инородные тяжелые частицы за счет сил инерции. Более легкие частицы не пропускаются сеткой фильтроэлемента. Накопившиеся частицы удаляются при снятии с корпуса крышки и фильтроэлемента.
А также изготовляем другое стандартизированное оборудование по чертежам проектных институтов и по чертежам заказчика:
•Блоки пружинные
•Воздухосборник вертикальный и горизонтальный
•Гидрозатвор по чертежу
•Грязевики горизонтальные
•Грязевики вертикальные
•Грязевики абонентские
•Грязеуловитель для всасывающих трубопроводов
•Закладная конструкция по ЗК
•Нагреватель азота
•Опоры и подвески для трубопроводов
•Отборные устройства давления по ЗК ТМ СТМ
•Охладитель проб по чертежу
•Подогреватель по Т-ММ-19-2002-07.00
•Пробки бобышки штуцера
•Камера выносная КУВ
•Камера для сигнализатора уровня
•Колонка для управления задвижками
•Колонка управления затвором и шаровыми кранами
•Пружинные блоки
•Расширитель прямой и угловой по ЗК
•Сепаратор
•Удлинитель шарнирный для задвижек, вентилей типа УШЗ по Т-ММ
•Узел отбора проб
•Узел присоединения шлангов, рукавов
•Узел присоединения дренажного трубопровода к насосам
•Фильтр временный к насосам ФСВ
•Фильтр жидкостной по ОРК
•Фланцевые соединения для камерных измерительных диафрагм ФКВ, ФКП
•Фонарь смотровой трубопроводный
Контактная информация
| Контакт: | Менеджер отдела продаж: Галина |
| Адрес: | инд.:423570,Россия,Республика Татарстан, |
| Телефон: | (917) 286-99-39 |
| Факс: | (8555)30-56-08 |
| При контакте с компанией сообщите что Вы с портала МашПорт.ru | |
| Email: | Отправить сообщение |
| Web: | |
| ICQ: | |
| Skype: | |
| Учетная запись: | КамПромДеталь | |
Изображения объявления
Объяление просмотрено 998 раз
Объявление добавлено 04.03.26 и действует до 03.04.26